Casa indipendente in vendita

Volturara Irpina, Via Dante Alighieri
€ 145.000
6 locali 6 locali
320 Mq 320 Mq
2 bagni 2 bagni

Casa indipendente in vendita

Volturara Irpina, Via Dante Alighieri

Descrizione annuncio

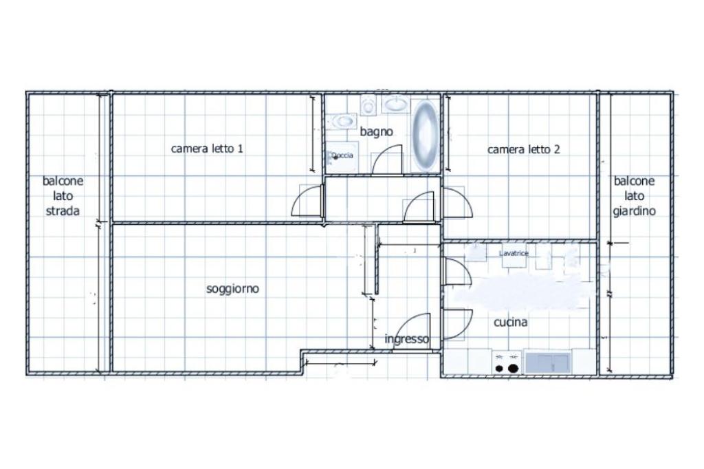
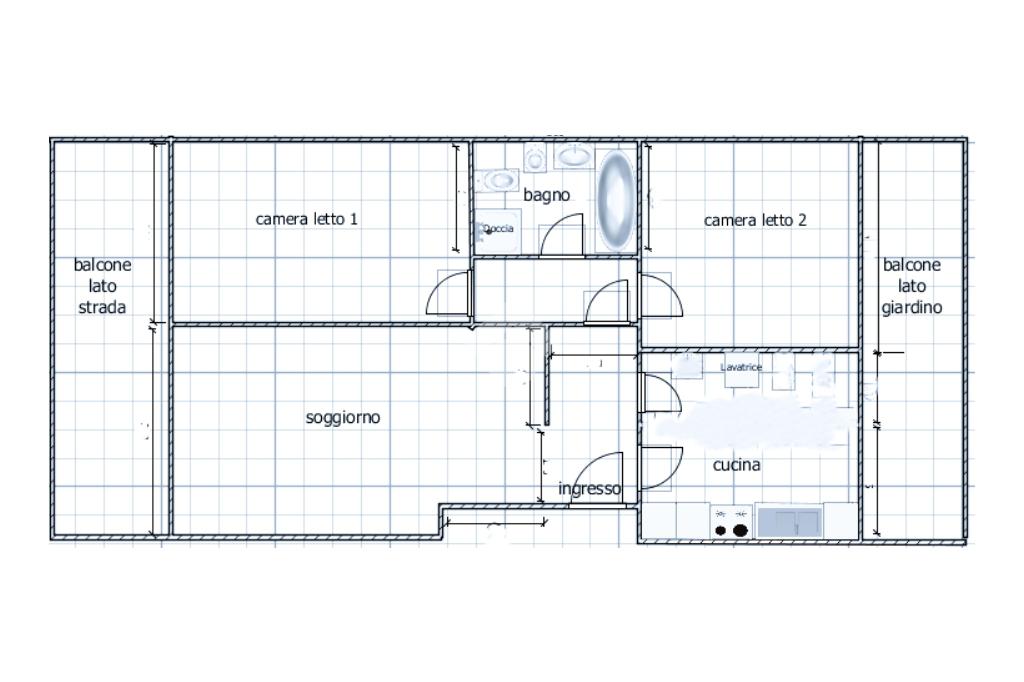
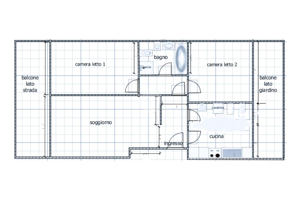
La TECNOCASA di Atripalda (AV) propone in vendita nel suggestivo Comune di Volturara Irpina (AV) – accogliente paese situato nella verde 'Piana del Dragone' – una casa indipendente disposta su due livelli, attualmente suddivisa in due appartamenti autonomi. Così composta:

Piano Terra: ampia zona garage, locali deposito e bagno, perfetto per la gestione di veicoli e attrezzi.

Piano Primo: ingresso, doppio salone, cucina abitabile, due camere da letto e bagno, offrono uno spazio confortevole per una famiglia.

Piano Secondo: disposizione identica al primo piano, consentendo di creare due appartamenti autonomi o di ampliare gli spazi abitativi.

Esterni: un giardino spazioso e recintato di circa 1.200 mq, con corte privata chiusa da cancello, ideale per momenti di relax all'aperto.

La soluzione si presenta in buono stato e in contesto centrale.

Per maggiori informazioni e appuntamenti: Tel 0825/623504.

Mostra tutto

Caratteristiche

Rif.:
61105020
Piano:
2 di 2 (Piano su più livelli)
Balconi:
4
Camere da letto:
4
Arredamento:
Assente
Condizionamento:
Autonomo
Mostra tutto
Prezzo Prezzo
€ 145.000
Rata mutuo Rata mutuo
€ 677 / mese
Proponi il tuo prezzoProponi il tuo prezzo

Classe Energetica

G
G
G
G
G
G
G
G
G
Anno di costruzione:
1980
Riscaldamento:
Autonomo
Tipo impianto:
A radiatori
Tipo alimentazione:
Metano

Ti interessa visionare l'immobile?

Fissa un appuntamento  Fissa un appuntamento

Richiedi informazioni

Clicca su Leggi per aprire l'informativa
* Questi campi sono obbligatori

Calcola il tuo mutuo

Semplice e senza impegno
Anticipo

( % )
Mutuo

( % )

pochi semplici passi

inserisci i tuoi dati
Questionario completato
Grazie per aver richiesto un appuntamento senza impegno con un nostro Consulente del Credito e Assicurativo.

Hai inserito correttamente tutti i dati necessari e a breve riceverai una e-mail con un link da convalidare per inviare i tuoi dati.
Affiliato
Studio Roma Srl
Via Roma, 163 - 165 83042 Atripalda (AV)

Il nostro staff


  • Fausto Gerardo Iandiorio
    Affiliato

  • Maria Dell'Aglio
    Coordinatrice
Via Roma, 163 - 165 83042 Atripalda (AV)
Zona: Atripalda-Cesinali-Manocalzati-San Potito Ultra-Sorbo Serpico
Mostra su mappa
Orari: lunedì 09:00–13:00 / 15:30–20:30 martedì 09:00–13:00 / 15:30–20:30 mercoledì 09:00–13:00 / 15:30–20:30 giovedì 09:00–13:00 / 15:30–20:30 venerdì 09:00–13:00 / 15:30–20:30 sabato 09:00–13:00 / 15:30–19:00 . Domenica Chiuso.
Affiliato
Studio Roma Srl
Via Roma, 163 - 165 83042 Atripalda (AV)

2026 Tecnocasa Franchising S.p.A. - P. IVA 08365160152 - Via Monte Bianco 60/A 20089 Rozzano (MI). Ogni agenzia ha un proprio titolare ed è autonoma. Privacy policy | Policy utilizzo | Cookie policy