Casa indipendente in vendita

Pratola Serra, Via Posto - Case Sparse
€ 128.000
4 locali 4 locali
134 Mq 134 Mq
1 bagno 1 bagno

Casa indipendente in vendita

Pratola Serra, Via Posto - Case Sparse

Descrizione annuncio

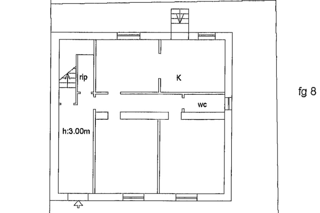
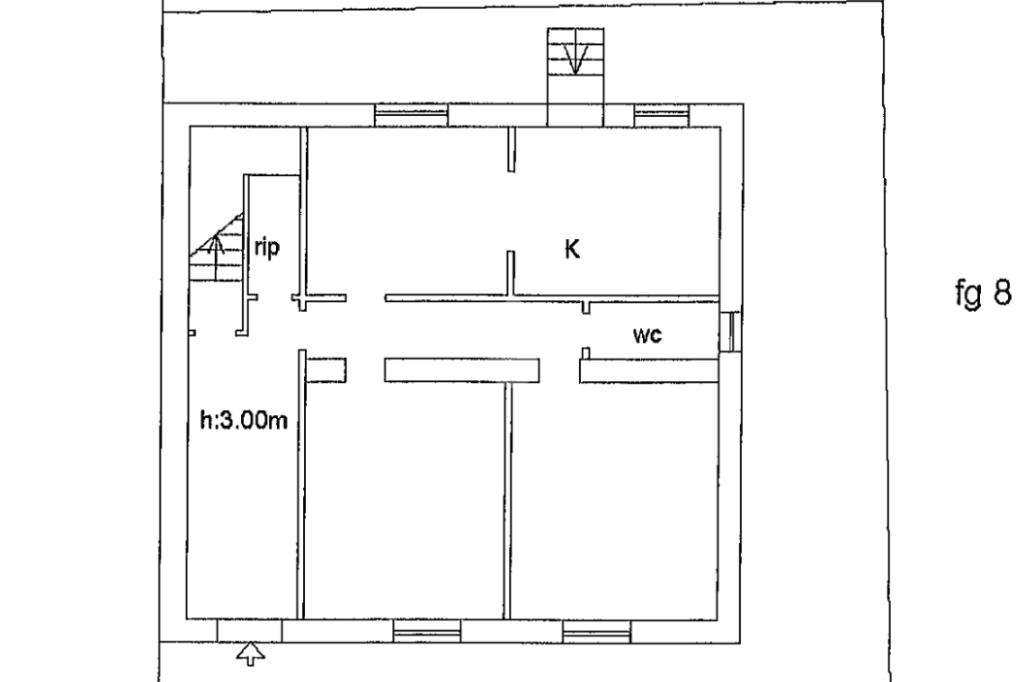
La TECNOCASA di Atripalda (AV) propone in vendita nel Comune di Pratola Serra (AV), a poca distanza dal centro del Paese; una graziosa soluzione indipendente con doppio ingresso disposta su unico livello abitabile.

Si compone da:

ingresso con salone a vista e cucina abitabile con camino,due camere da letto e servizio.

Completo di soffitta di circa 60 mq - allo stato grezzo, collegata da scala interna e terreno circostante di circa 1.200 mq con corte chiusa da cancello.

L'immobile si presenta in ottimo stato in quanto è stato oggetto di ristrutturazione con Bonus 110.

Lavori eseguiti: adeguamento sismico-cappotto termico-impianto fotovoltaico con torretta ricarica auto-sostituzione infissi e rifacimento impianto termico.

Tel: 0825/623504 - Siamo in Via Roma 163/165.

Mostra tutto

Nelle vicinanze

Trasporto pubblico Trasporto pubblico
Prata-Pratola
Prata-Pratola
780 m
Scuole Scuole
Scuola Materna
2,1 Km
Negozi Negozi
Frutta e fiori
1,9 Km
Bazar Flora
1,9 Km
Bar Bar
Bar del corso
270 m
Ouen winebar
1,9 Km
Bar Sant'Audeno
1,9 Km
Mostra tutto

Caratteristiche

Rif.:
60900957
Piano:
Terra di 2
Totale piani:
2
Terrazzi:
1
Camere da letto:
2
Arredamento:
Assente
Mostra tutto
Prezzo Prezzo
€ 128.000
Rata mutuo Rata mutuo
€ 598 / mese
Proponi il tuo prezzoProponi il tuo prezzo

Classe Energetica

Questo immobile è esente da classe energetica
Anno di costruzione:
1980
Riscaldamento:
Autonomo
Tipo impianto:
A radiatori
Tipo alimentazione:
Pannelli

Ti interessa visionare l'immobile?

Fissa un appuntamento  Fissa un appuntamento

Richiedi informazioni

Clicca su Leggi per aprire l'informativa
* Questi campi sono obbligatori

Calcola il tuo mutuo

Semplice e senza impegno
Anticipo

( % )
Mutuo

( % )

pochi semplici passi

inserisci i tuoi dati
Questionario completato
Grazie per aver richiesto un appuntamento senza impegno con un nostro Consulente del Credito e Assicurativo.

Hai inserito correttamente tutti i dati necessari e a breve riceverai una e-mail con un link da convalidare per inviare i tuoi dati.
Affiliato
Studio Roma Srl
Via Roma, 163 - 165 83042 Atripalda (AV)

Il nostro staff


  • Fausto Gerardo Iandiorio
    Affiliato

  • Maria Dell'Aglio
    Coordinatrice
Via Roma, 163 - 165 83042 Atripalda (AV)
Zona: Atripalda-Cesinali-Manocalzati-San Potito Ultra-Sorbo Serpico
Mostra su mappa
Orari: lunedì 09:00–13:00 / 15:30–20:30 martedì 09:00–13:00 / 15:30–20:30 mercoledì 09:00–13:00 / 15:30–20:30 giovedì 09:00–13:00 / 15:30–20:30 venerdì 09:00–13:00 / 15:30–20:30 sabato 09:00–13:00 / 15:30–19:00 . Domenica Chiuso.
Affiliato
Studio Roma Srl
Via Roma, 163 - 165 83042 Atripalda (AV)

2026 Tecnocasa Franchising S.p.A. - P. IVA 08365160152 - Via Monte Bianco 60/A 20089 Rozzano (MI). Ogni agenzia ha un proprio titolare ed è autonoma. Privacy policy | Policy utilizzo | Cookie policy