Villa a schiera in vendita

Manocalzati, Piazza IV Novembre
€ 228.000
5 locali 5 locali
230 Mq 230 Mq
3 bagni 3 bagni

Villa a schiera in vendita

Manocalzati, Piazza IV Novembre

Descrizione annuncio

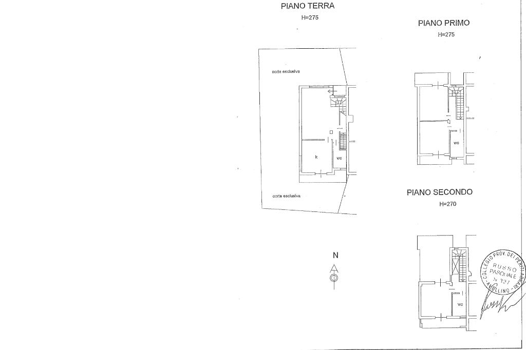
La TECNOCASA di Atripalda (AV) propone in vendita nel Comune di Manocalzati (AV) una splendida villa a schiera in parco chiuso con cancello automatico, situata in posizione centrale e disposta su tre livelli.

Al Piano Terra luminoso ingresso con un accogliente salone a vista e termocamino, una cucina abitabile e un bagno.
Al Piano Primo sono presenti due ampie e confortevoli camere da letto, oltre a un secondo bagno.
La mansarda ospita due spaziose camera da letto e un ulteriore bagno, ideale come zona notte o studio.

Completa la proprietà una spaziosa corte esclusiva con portico, perfetta per trascorrere piacevoli momenti all’aperto, e un comodo garage sottostante.

L’immobile si presenta in ottimo stato e pronto per essere abitato.

A pochi Kilometri dal centro di Atripalda e da Avellino.

Mostra tutto

Nelle vicinanze

Trasporto pubblico Trasporto pubblico
Montefredane
Montefredane
2,0 Km
Supermercati Supermercati
Lidl
2,3 Km
Mostra tutto

Caratteristiche

Rif.:
61170712
Piano:
Su più livelli di 2
Totale piani:
2
Balconi:
4
Camere da letto:
4
Arredamento:
Assente
Mostra tutto
Prezzo Prezzo
€ 228.000
Rata mutuo Rata mutuo
€ 1.065 / mese
Proponi il tuo prezzoProponi il tuo prezzo

Classe Energetica

E
E
E
E
E
E
E
E
E
Anno di costruzione:
2009
Riscaldamento:
Autonomo
Tipo impianto:
A radiatori
Tipo alimentazione:
Metano

Ti interessa visionare l'immobile?

Fissa un appuntamento  Fissa un appuntamento

Richiedi informazioni

Clicca su Leggi per aprire l'informativa
* Questi campi sono obbligatori

Calcola il tuo mutuo

Semplice e senza impegno
Anticipo

( % )
Mutuo

( % )

pochi semplici passi

inserisci i tuoi dati
Questionario completato
Grazie per aver richiesto un appuntamento senza impegno con un nostro Consulente del Credito e Assicurativo.

Hai inserito correttamente tutti i dati necessari e a breve riceverai una e-mail con un link da convalidare per inviare i tuoi dati.
Affiliato
Studio Roma Srl
Via Roma, 163 - 165 83042 Atripalda (AV)

Il nostro staff


  • Fausto Gerardo Iandiorio
    Affiliato

  • Maria Dell'Aglio
    Coordinatrice
Via Roma, 163 - 165 83042 Atripalda (AV)
Zona: Atripalda-Cesinali-Manocalzati-San Potito Ultra-Sorbo Serpico
Mostra su mappa
Orari: lunedì 09:00–13:00 / 15:30–20:30 martedì 09:00–13:00 / 15:30–20:30 mercoledì 09:00–13:00 / 15:30–20:30 giovedì 09:00–13:00 / 15:30–20:30 venerdì 09:00–13:00 / 15:30–20:30 sabato 09:00–13:00 / 15:30–19:00 . Domenica Chiuso.
Affiliato
Studio Roma Srl
Via Roma, 163 - 165 83042 Atripalda (AV)

2026 Tecnocasa Franchising S.p.A. - P. IVA 08365160152 - Via Monte Bianco 60/A 20089 Rozzano (MI). Ogni agenzia ha un proprio titolare ed è autonoma. Privacy policy | Policy utilizzo | Cookie policy