Porzione di bifamiliare in vendita

Manocalzati, Via Sant'Elia
€ 120.000
5 locali 5 locali
270 Mq 270 Mq
3 bagni 3 bagni

Porzione di bifamiliare in vendita

Manocalzati, Via Sant'Elia

Descrizione annuncio

La TECNOCASA di Atripalda (AV) presenta una porzione di villa bifamiliare situata nel Comune di Manocalzati (AV), a breve distanza da Atripalda e Avellino, facilmente raggiungibile tramite la Variante 7 bis e la SS Ofantina. La proprietà include circa 2.500 mq di terreno circostante, offrendo ampi spazi verdi ideali per relax e attività all'aperto.

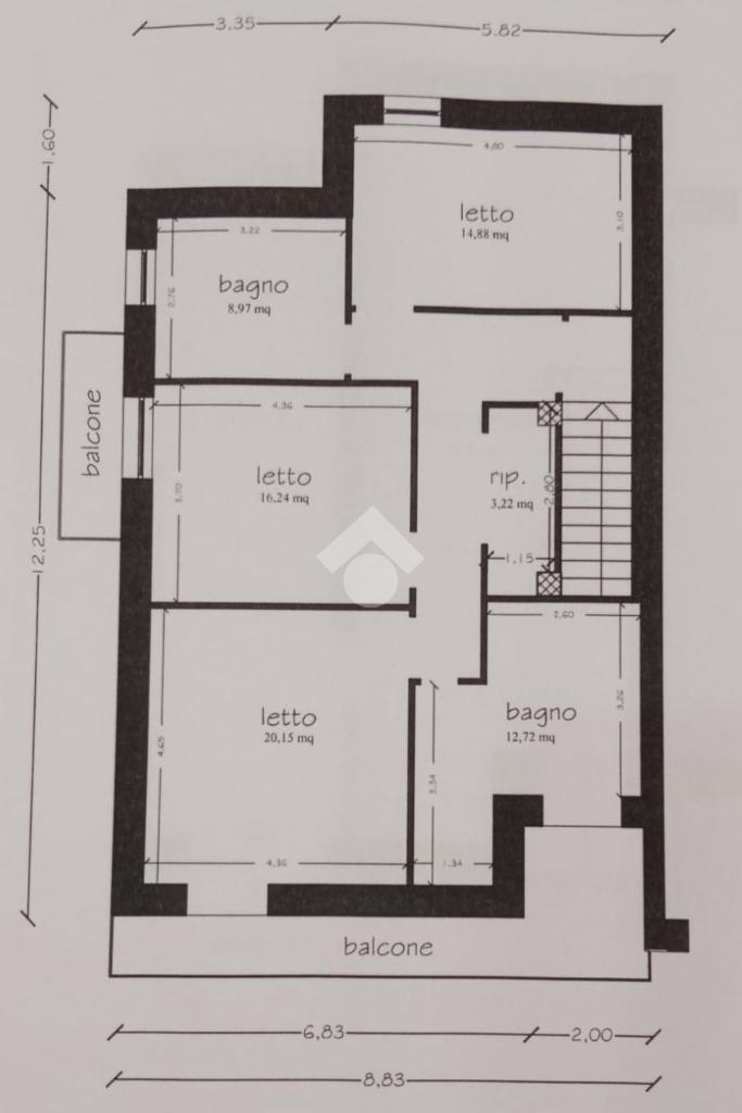
La soluzione si sviluppa su tre livelli:

Piano seminterrato: Ampia zona garage/deposito con possibilità di creare una tavernetta accogliente e funzionale, ideale per momenti di convivialità o attività ricreative.

Piano Terra: Ingresso che si apre su una spaziosa e luminosa zona living con cucina e salone a vista, oltre a un bagno, creando un ambiente pratico e confortevole per la vita quotidiana.

Piano Primo: Tre confortevoli camere da letto e un doppio servizio, perfetti per nuclei familiari o esigenze abitative più ampie.

All'esterno, la proprietà dispone di ampie balconate, un giardino privato e un'area recintata e chiusa da cancello con ingresso indipendente, garantendo privacy e sicurezza.

Il contesto residenziale e tranquillo, vicino al centro del paese, rende questa soluzione ideale per chi desidera personalizzare la propria casa secondo i propri gusti, sfruttando gli spazi esterni e le potenzialità di sviluppo.

Opportunità unica di acquistare casa da rifinire e personalizzare, in un ambiente sereno e facilmente accessibile.

Per info: 0825/623504 - Siamo in Via Roma n° 163/165 - Atripalda.

Mostra tutto

Nelle vicinanze

Trasporto pubblico Trasporto pubblico
Montefredane
Montefredane
2,1 Km
Avellino
Avellino
3,0 Km
Fermata Bus Nazionali - Internazionali Avellino Ferrovia
Fermata Bus Nazionali - Internazionali Avellino Ferrovia
2,9 Km
Scuole Scuole
Istituto Comprensivo "Francesco Tedesco"
3,0 Km
Scuola Primaria Borgo Ferrovia
3,0 Km
Supermercati Supermercati
Lidl
2,0 Km
Mostra tutto

Caratteristiche

Rif.:
61114691
Piano:
2 di 2 (Piano su più livelli)
Box:
1
Balconi:
3
Camere da letto:
3
Arredamento:
Assente
Mostra tutto
Prezzo Prezzo
€ 120.000
Rata mutuo Rata mutuo
€ 561 / mese
Proponi il tuo prezzoProponi il tuo prezzo

Classe Energetica

A1
A1
A1
A1
A1
A1
A1
A1
A1
Anno di costruzione:
1980
Riscaldamento:
Autonomo
Tipo impianto:
A radiatori
Tipo alimentazione:
Metano

Ti interessa visionare l'immobile?

Fissa un appuntamento  Fissa un appuntamento

Richiedi informazioni

Clicca su Leggi per aprire l'informativa
* Questi campi sono obbligatori

Calcola il tuo mutuo

Semplice e senza impegno
Anticipo

( % )
Mutuo

( % )

pochi semplici passi

inserisci i tuoi dati
Questionario completato
Grazie per aver richiesto un appuntamento senza impegno con un nostro Consulente del Credito e Assicurativo.

Hai inserito correttamente tutti i dati necessari e a breve riceverai una e-mail con un link da convalidare per inviare i tuoi dati.
Affiliato
Studio Roma Srl
Via Roma, 163 - 165 83042 Atripalda (AV)

Il nostro staff


  • Fausto Gerardo Iandiorio
    Affiliato

  • Maria Dell'Aglio
    Coordinatrice
Via Roma, 163 - 165 83042 Atripalda (AV)
Zona: Atripalda-Cesinali-Manocalzati-San Potito Ultra-Sorbo Serpico
Mostra su mappa
Orari: lunedì 09:00–13:00 / 15:30–20:30 martedì 09:00–13:00 / 15:30–20:30 mercoledì 09:00–13:00 / 15:30–20:30 giovedì 09:00–13:00 / 15:30–20:30 venerdì 09:00–13:00 / 15:30–20:30 sabato 09:00–13:00 / 15:30–19:00 . Domenica Chiuso.
Affiliato
Studio Roma Srl
Via Roma, 163 - 165 83042 Atripalda (AV)

2026 Tecnocasa Franchising S.p.A. - P. IVA 08365160152 - Via Monte Bianco 60/A 20089 Rozzano (MI). Ogni agenzia ha un proprio titolare ed è autonoma. Privacy policy | Policy utilizzo | Cookie policy