Trilocale in vendita

Atripalda, Via Grasmsci
€ 115.000
3 locali 3 locali
90 Mq 90 Mq
1 bagno 1 bagno

Trilocale in vendita

Atripalda, Via Grasmsci

Descrizione annuncio

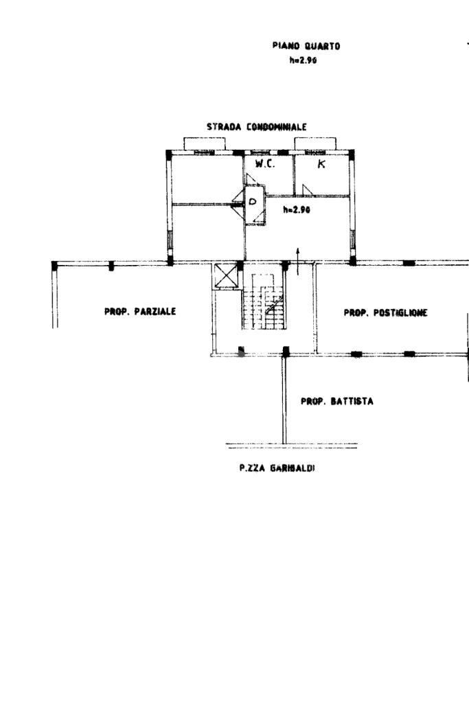
La TECNOCASA propone a Via Gramsci, in contesto centrale adiacente a Piazza Garibaldi e a Piazza Umberto I;

la vendita di un appartamento post/sisma

di circa 90 mq in buono stato, posto al 4° Piano e servito da ascensore.

Composto da : ingresso, salone, cucina abitabile, due camere da letto balconate e servizio.

Completa l'offerta un comodo garage sottostante al fabbricato di circa 15 mq.

Attualmente l'immobile è locato, soluzione ideale anche per uso investimento.

Centralissimo!

Mostra tutto

Nelle vicinanze

Trasporto pubblico Trasporto pubblico
Avellino
Avellino
1,1 Km
Fermata Bus Nazionali - Internazionali Avellino Ferrovia
Fermata Bus Nazionali - Internazionali Avellino Ferrovia
1,3 Km
Scuole Scuole
Scuole
1,2 Km
Istituto Comprensivo "Francesco Tedesco"
1,2 Km
Scuola Primaria Borgo Ferrovia
1,3 Km
Conservatorio "Domenico Cimarosa"
2,8 Km
Istituto Professionale Giorgi
3,0 Km
Ospedali Ospedali
Ospedale San Giuseppe Moscati
2,9 Km
Supermercati Supermercati
Lidl
1,1 Km
Famila
1,3 Km
Supermercati
2,6 Km
Negozi Negozi
Conbipel
1,2 Km
Oviesse
1,3 Km
Bar Pasticceria Scannelli
2,3 Km
Mostra tutto

Caratteristiche

Rif.:
61170881
Piano:
4 di 4 con ascensore (ultimo Piano)
Balconi:
2
Camere da letto:
2
Arredamento:
Assente
Condizionamento:
Autonomo
Mostra tutto
Prezzo Prezzo
€ 115.000
Rata mutuo Rata mutuo
€ 542 / mese
Proponi il tuo prezzoProponi il tuo prezzo

Classe Energetica

F
F
F
F
F
F
F
F
F
Anno di costruzione:
1990
Riscaldamento:
Autonomo
Tipo impianto:
A radiatori
Tipo alimentazione:
Metano

Ti interessa visionare l'immobile?

Fissa un appuntamento  Fissa un appuntamento

Richiedi informazioni

Clicca su Leggi per aprire l'informativa
* Questi campi sono obbligatori

Calcola il tuo mutuo

Semplice e senza impegno
Anticipo

( % )
Mutuo

( % )

pochi semplici passi

inserisci i tuoi dati
Questionario completato
Grazie per aver richiesto un appuntamento senza impegno con un nostro Consulente del Credito e Assicurativo.

Hai inserito correttamente tutti i dati necessari e a breve riceverai una e-mail con un link da convalidare per inviare i tuoi dati.
Affiliato
Studio Roma Srl
Via Roma, 163 - 165 83042 Atripalda (AV)

Il nostro staff


  • Fausto Gerardo Iandiorio
    Affiliato

  • Maria Dell'Aglio
    Coordinatrice
Via Roma, 163 - 165 83042 Atripalda (AV)
Zona: Atripalda-Cesinali-Manocalzati-San Potito Ultra-Sorbo Serpico
Mostra su mappa
Orari: lunedì 09:00–13:00 / 15:30–20:30 martedì 09:00–13:00 / 15:30–20:30 mercoledì 09:00–13:00 / 15:30–20:30 giovedì 09:00–13:00 / 15:30–20:30 venerdì 09:00–13:00 / 15:30–20:30 sabato 09:00–13:00 / 15:30–19:00 . Domenica Chiuso.
Affiliato
Studio Roma Srl
Via Roma, 163 - 165 83042 Atripalda (AV)

2026 Tecnocasa Franchising S.p.A. - P. IVA 08365160152 - Via Monte Bianco 60/A 20089 Rozzano (MI). Ogni agenzia ha un proprio titolare ed è autonoma. Privacy policy | Policy utilizzo | Cookie policy