Quadrilocale in vendita

Atripalda, Via Fiumitello
€ 80.000
Prezzo aggiornato
4 locali 4 locali
120 Mq 120 Mq
2 bagni 2 bagni

Quadrilocale in vendita

Atripalda, Via Fiumitello

Descrizione annuncio

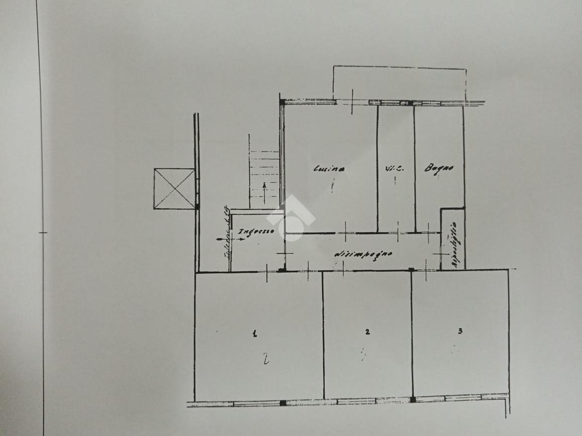
La TECNOCASA propone in vendita a poca distanza da Piazza Umberto I, un luminosissimo e panoramico appartamento posto al 7° Piano in fabbricato munito di ascensore.

L'appartamento è composto da:

un ampio ingresso, un salone a vista che offre un ambiente accogliente, una cucina abitabile con balcone, perfetto per momenti di relax. Ci sono anche due camere da letto spaziose, un doppio servizio e un comodo ripostiglio, che è sempre utile per avere un po' di spazio extra.

L'immobile si presenta in buono stato, ma c'è la possibilità di un ammodernamento o ristrutturazione, se desideri personalizzarlo secondo i tuoi gusti ed esigenze.

Contesto centralissimo!

Tel: 0825/623504 - Siamo in Via Roma n° 163/165.

Mostra tutto

Nelle vicinanze

Trasporto pubblico Trasporto pubblico
Avellino
Avellino
1,4 Km
Fermata Bus Nazionali - Internazionali Avellino Ferrovia
Fermata Bus Nazionali - Internazionali Avellino Ferrovia
1,6 Km
Scuole Scuole
Scuole
1,5 Km
Istituto Comprensivo "Francesco Tedesco"
1,6 Km
Scuola Primaria Borgo Ferrovia
1,6 Km
Supermercati Supermercati
Lidl
1,2 Km
Famila
1,7 Km
Supermercati
2,9 Km
Negozi Negozi
Conbipel
1,6 Km
Oviesse
1,7 Km
Bar Pasticceria Scannelli
2,6 Km
Mostra tutto

Caratteristiche

Rif.:
61113190
Piano:
7 di 7 con ascensore (ultimo Piano)
Balconi:
3
Camere da letto:
2
Arredamento:
Assente
Condizionamento:
Autonomo
Mostra tutto
Prezzo Prezzo
€ 80.000
Rata mutuo Rata mutuo
€ 378 / mese
Proponi il tuo prezzoProponi il tuo prezzo

Classe Energetica

G
G
G
G
G
G
G
G
G
Anno di costruzione:
1970
Riscaldamento:
Autonomo
Tipo impianto:
A radiatori
Tipo alimentazione:
Metano

Prezzo ridotto di €1 (12%%)

Ti interessa visionare l'immobile?

Fissa un appuntamento  Fissa un appuntamento

Richiedi informazioni

Clicca su Leggi per aprire l'informativa
* Questi campi sono obbligatori

Calcola il tuo mutuo

Semplice e senza impegno
Anticipo

( % )
Mutuo

( % )

pochi semplici passi

inserisci i tuoi dati
Questionario completato
Grazie per aver richiesto un appuntamento senza impegno con un nostro Consulente del Credito e Assicurativo.

Hai inserito correttamente tutti i dati necessari e a breve riceverai una e-mail con un link da convalidare per inviare i tuoi dati.
Affiliato
Studio Roma Srl
Via Roma, 163 - 165 83042 Atripalda (AV)

Il nostro staff


  • Fausto Gerardo Iandiorio
    Affiliato
Via Roma, 163 - 165 83042 Atripalda (AV)
Zona: Atripalda-Cesinali-Manocalzati-San Potito Ultra-Sorbo Serpico
Mostra su mappa
Orari: lunedì 09:00–13:00 / 15:30–20:30 martedì 09:00–13:00 / 15:30–20:30 mercoledì 09:00–13:00 / 15:30–20:30 giovedì 09:00–13:00 / 15:30–20:30 venerdì 09:00–13:00 / 15:30–20:30 sabato 09:00–13:00 / 15:30–19:00 . Domenica Chiuso.
Affiliato
Studio Roma Srl
Via Roma, 163 - 165 83042 Atripalda (AV)

2025 Tecnocasa Franchising S.p.A. - P. IVA 08365160152 - Via Monte Bianco 60/A 20089 Rozzano (MI). Ogni agenzia ha un proprio titolare ed è autonoma. Privacy policy | Policy utilizzo | Cookie policy